
The Nambucca Heads
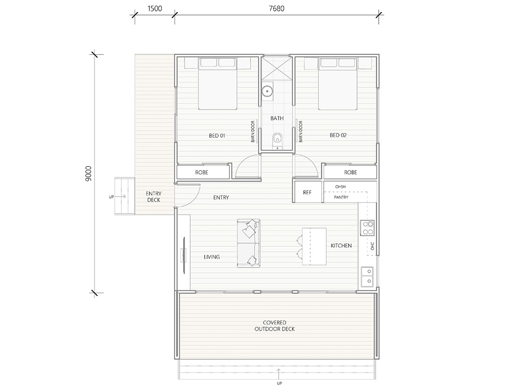
The Nambucca Heads is a cleverly designed two-bedroom home that balances simplicity with modern comfort. Featuring an extra-wide 7.6m footprint and impressive 3m high ceilings, the design enhances natural light and creates a greater sense of space and openness throughout. A light-filled open-plan kitchen, dining and living area forms the heart of the home, flowing seamlessly onto a covered outdoor deck for relaxed everyday living and entertaining. Two well-proportioned bedrooms with built-in robes are privately positioned, supported by a central bathroom for practical convenience. Clean architectural lines and a compact footprint make this design both efficient and inviting. Perfect for downsizers, couples or guest accommodation, The Nambucca Heads delivers a calm, low-maintenance lifestyle that feels open, connected, and effortlessly liveable.
DISCLAIMER: Images and plans are for illustrative purposes only and may depict features not supplied by Mr Cabins, including landscaping, fencing, window furnishings, wall décor, decorative lighting, furniture etc. Certain features shown may also demonstrate what the home could look like and do not form part of our Standard or Premium Inclusions range. All designs are copyright to Mr Cabins. Mr Cabins reserves the right to alter any specifications due to product availability, ongoing product development or Developers Estate Guidelines.

