
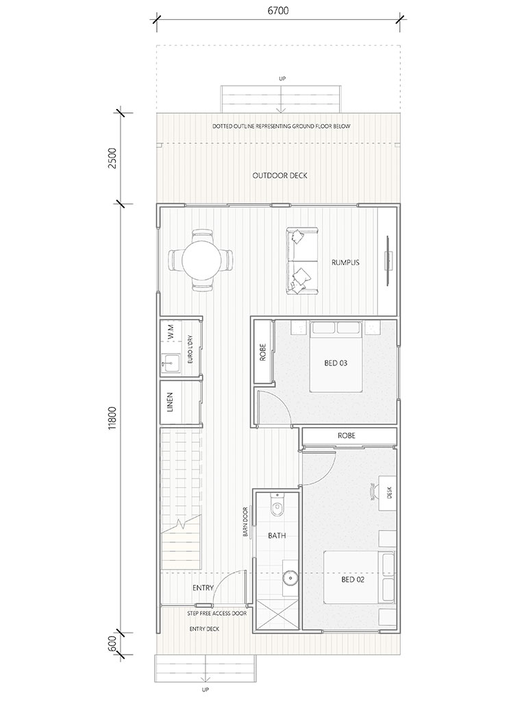
The Casuarina
The Casuarina is a thoughtfully designed two-level modular home that balances flexibility, comfort, and modern living. With open-plan living positioned upstairs, the home maximises light, views, and connection to the outdoors, while the lower level provides additional living space ideal for families or guests. Generous bedrooms, smart storage solutions, and well-separated living zones make The Casuarina equally suited to permanent living, holiday accommodation, or investment use. Designed for adaptability across a range of block types, this home delivers practical design without compromising on style or liveability.
DISCLAIMER: Images and plans are for illustrative purposes only and may depict features not supplied by Mr Cabins, including landscaping, fencing, window furnishings, wall décor, decorative lighting, furniture etc. Certain features shown may also demonstrate what the home could look like and do not form part of our Standard or Premium Inclusions range. All designs are copyright to Mr Cabins. Mr Cabins reserves the right to alter any specifications due to product availability, ongoing product development or Developers Estate Guidelines.


